Lokal użytkowy na wynajem przy ul. Towarowej 1 w Tarnowskich Górach
Oferujemy na wynajem lokal użytkowy w Tarnowskich Górach przy ul. Towarowej 1 o powierzchni 107,00 m2. Czynsz netto 30,00 zł/m kw. Cena do negocjacji.
Najemca oprócz czynszu zobowiązany jest do uiszczania na rzecz wynajmującego opłat za:
-energię cieplną- miesięczna opłata stała oraz opłata zmienna w okresie grzewczym wg obowiązujących stawek MPEC, proporcjonalnie do ponoszenia kosztów ogrzewania budynku biurowego przeliczonych na m2 powierzchni użytkowej;
-energię elektryczną- wg. odczytów podlicznika;
-zużycie wody- wg. odczytów podlicznika.
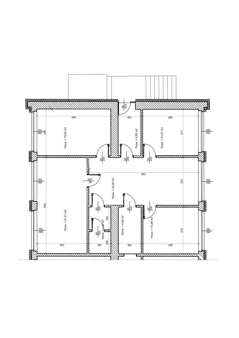
Lokal składa się z 5 pomieszczeń biurowych, pokoju socjalnego, wc, wiatrołapu.
Nieruchomość znajduje się na wysokim parterze - 2 piętrowego budynku biurowego, posiada odrębne wejście.
Okna PCV. Lokal po remoncie- ściany odświeżone, nowe panele podłogowe. Przy lokalu parking.
Budynek jest po termomodernizacji. Prosty dojazd, atrakcyjna oferta.
